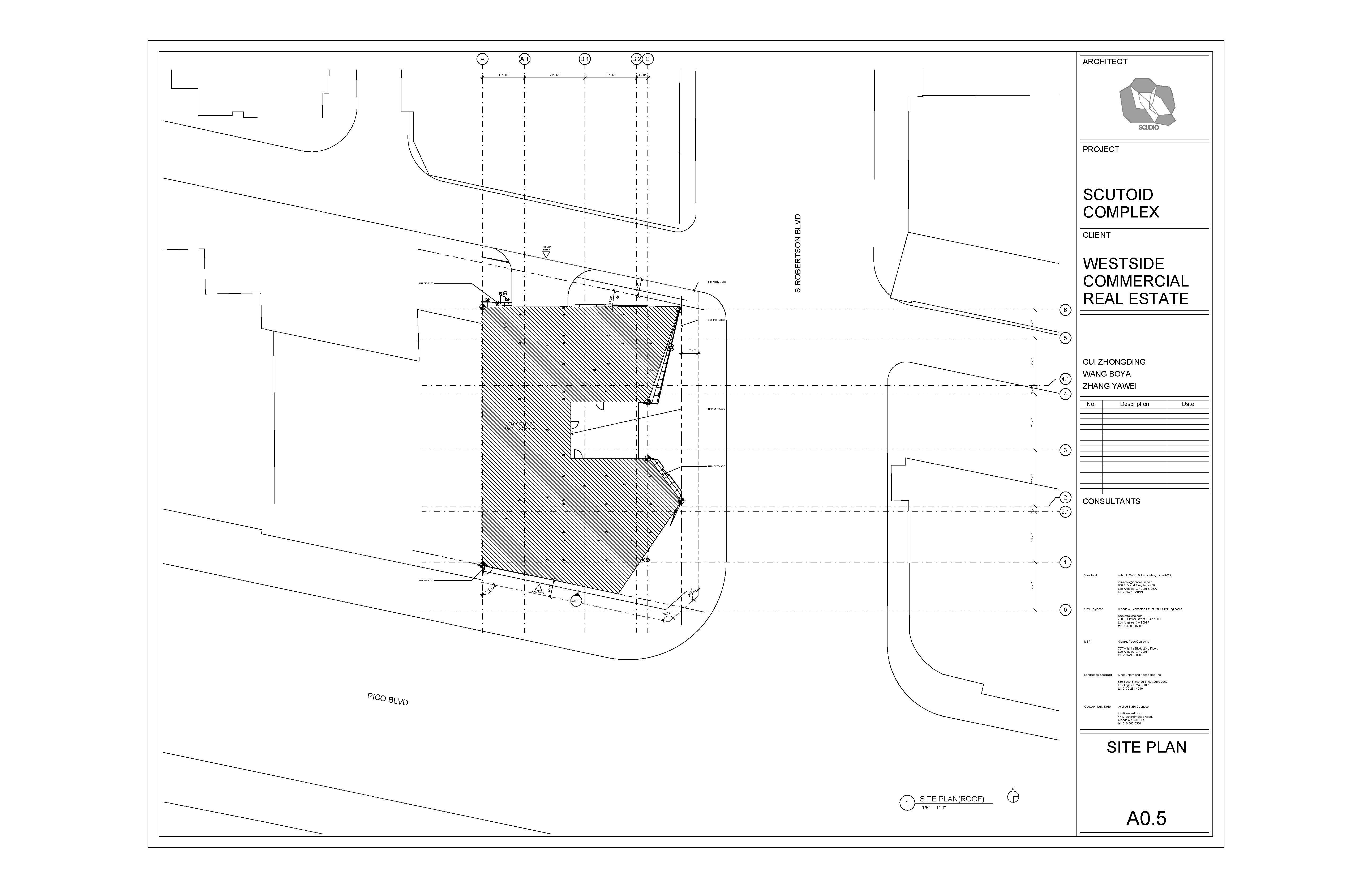
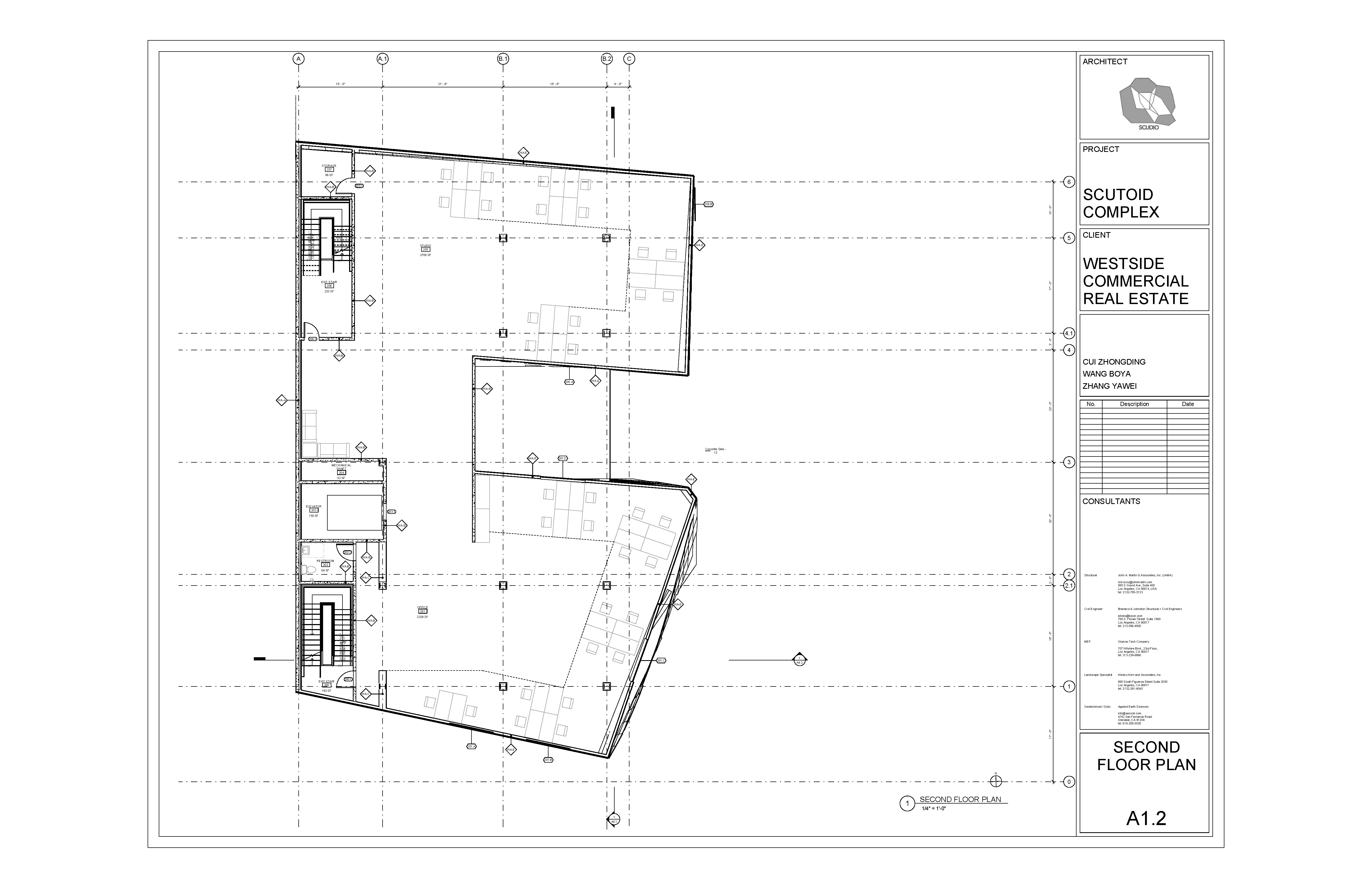
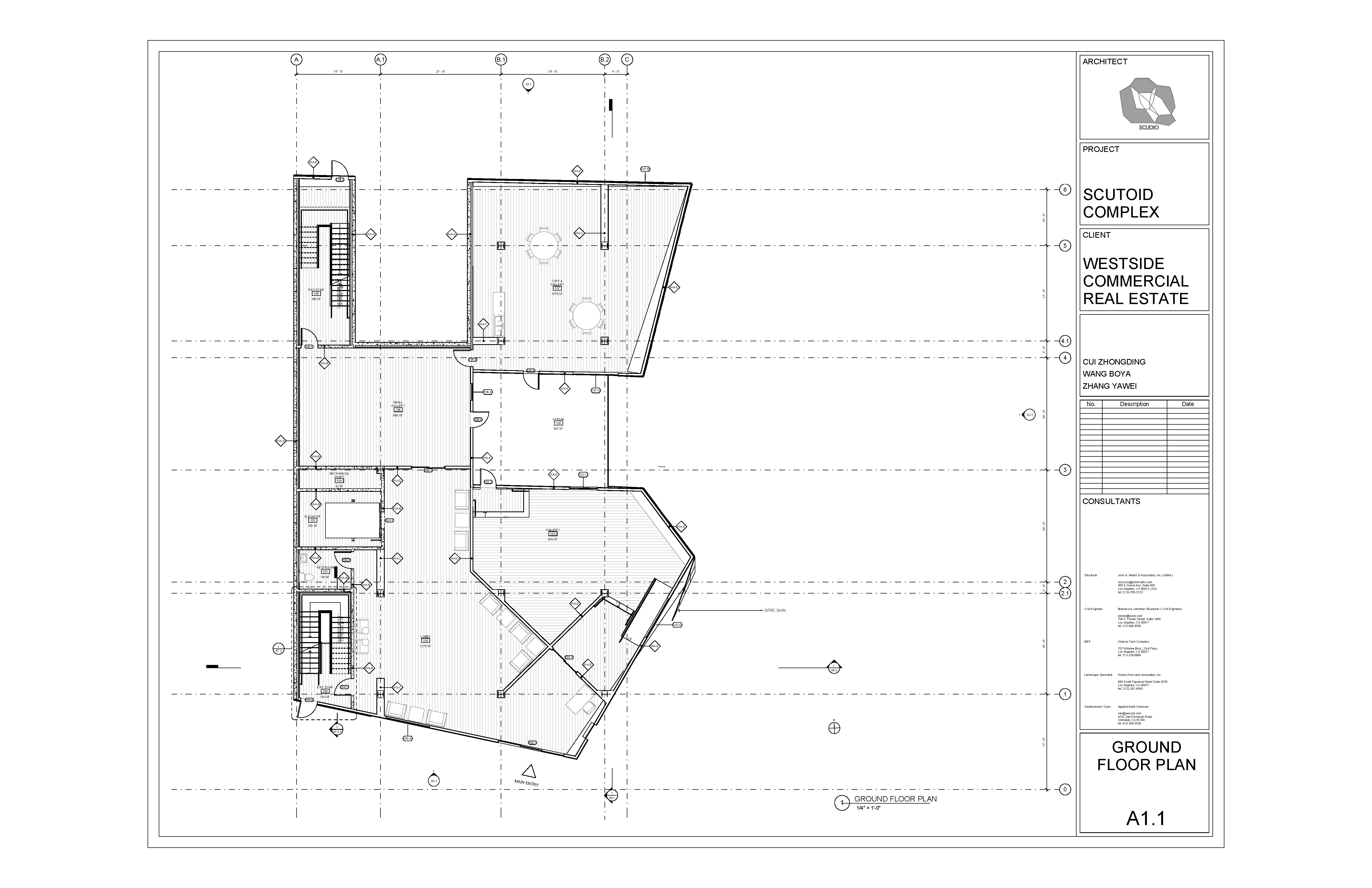
AS Construction Documentation—Scutoid Complex

/ 2018 Fall Semester
From AS Adv Project Delivery / Instructed by Pavel Getov and, Kerenza Harris
Group with Yawei ZHANG, Zhongding CUI
The course focuses on an advanced methods of project delivery and construction documents incorporating digital technologies and investigating new models for linking design and construction processes. It introduces Building Information Modeling as one of the tools for realignment of the traditional relationships between the project stakeholders. Based on a range of relevant architectural case study projects students will learn how to develop a set of 2d and 3d construction documents specifically tailored for the design challenges of each project . Lectures and site visits to fabricators and construction sites will further inform students of technical documentation methods for projects that are operating on the forefront of design and construction technologies to date.
WALL SECTIONS
WALL DETAILS